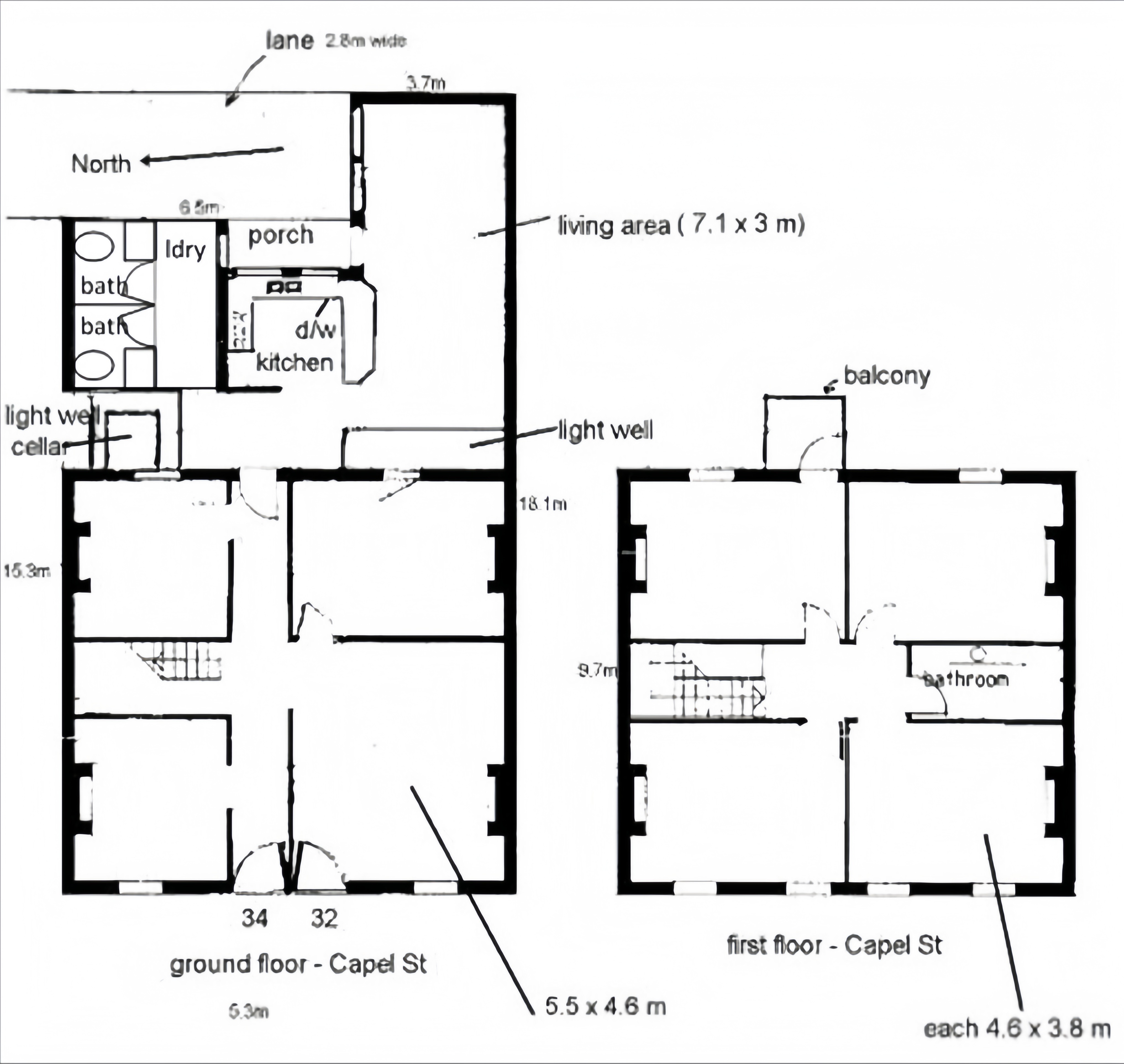
32 Capel St West Melbourne
Rented


December 31, 2025

Furnished with double bed, closet & bedside table
$365 All Bills Included
⭐️ Single Room Available in the Heart of the CBD! ⭐️
💰 $365/week (bills included, capped at $450)
📍 32 Capel Street, West Melbourne
🏙️ 7 bedrooms · 3 bathrooms
🗓️ Move-in: 31 Dec
🚉 Just 3 minutes’ walk to Flagstaff Gardens and Flagstaff Station
✨ A spacious and cozy home right on the edge of the city — perfect for enjoying vibrant CBD living, with cafés, shops, and public transport just around the corner!
💖 Couples welcome
📩 Message us to book an inspection!
Property amenities
Internet







